• +420 517 541 222
  • Tato e-mailová adresa je chráněna před spamboty. Pro její zobrazení musíte mít povolen Javascript.
  1. Arkys
  2. POLAR
  3. Kabelové žebříky POLAR

Kabelové žebříky POLAR

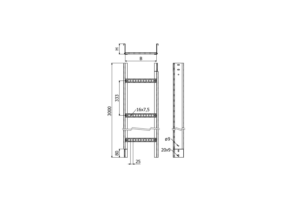
Žebřík H60 / L = 3 000 mm

označení B [mm] H [mm] objednací kód max. zátěž při rozteči kotvení využitelnost při max. zátěži
SZ ZZ MZ A2 A4 2,0 m 2,5 m 3,0 m 2,0 m 2,5 m 3,0 m
P1B 150/60 150 60 ARB-24111912 ARB-22111915 phone-ico phone-ico phone-ico 208
kg/m
124
kg/m
70
kg/m
100%
P1B 200/60 200 ARB-24112012 ARB-22112015 100%
P1B 300/60 300 ARB-24112212 ARB-22112215 100%
P1B 400/60 400 ARB-24112312 ARB-22112315 100%
P1B 500/60 500 ARB-24112412 ARB-22112415 100% 90%

 

Pro spoj žebříků použijte SSB M8 - 4ks

V případě objednání žárového zinku je konstrukce uchycení příčníků viz obázek níže.

Žebřík H100 / L = 3 000 mm

označení B [mm] H [mm] objednací kód max. zátěž při rozteči kotvení využitelnost při max. zátěži
SZ ZZ MZ A2 A4 2,0 m 2,5 m 3,0 m 2,0 m 2,5 m 3,0 m
P1B 150/100 150 100 ARB-24114815 ARB-22114820 phone-ico phone-ico phone-ico 303
kg/m
185
kg/m
120
kg/m
100%
P1B 200/100 200 ARB-24114915 ARB-22114920 100%
P1B 300/100 300 ARB-24115115 ARB-22115120 100%
P1B 400/100 400 ARB-24115215 ARB-22115220 100%
P1B 500/100 500 ARB-24115315 ARB-22115320 100% 85% 79%

 

Pro spoj žebříků použijte SSB M8 - 4ks

V případě objednání žárového zinku je konstrukce uchycení příčníků viz obázek níže.

Žebřík H100 / L = 6 000 mm

označení B [mm] H [mm] objednací kód max. zátěž při rozteči kotvení  využitelnost při max. zátěži
ZZ 3,0 m 4,0 m 5,0 m 6,0 m 3,0 m 4,0 m 5,0 m 6,0 m
P1B 200/100 200 100 ARB-22124920-6m 200 kg/m 120 kg/m 75 kg/m 65 kg/m 100%
P1B 300/100 300 ARB-22125120-6m 100% 85% 74%
P1B 500/100 500 ARB-22125320-6m 100% 85% 51% 44%

 

Pro spoj žebříků použijte SSB M8 - 4ks

Nahoru